Nueva estación de alta velocidad en Barajas: impulso a la conectividad ferroviaria
La nueva estación de alta velocidad en Barajas es el gran movimiento para conectar de forma directa el aeropuerto Adolfo Suárez Madrid-Barajas con Chamartín y con la red AVE/alta velocidad. No es solo un andén más: es separar tráficos, ganar capacidad y convertir Barajas en un verdadero nodo ferroviario-aeroportuario al nivel de las grandes capitales europeas.
Tabla de Contenidos
- 1 Objetivos del proyecto
- 2 Cronograma y fases (actualizado a 2025)
- 3 Detalles de la infraestructura
- 4 Impacto en la movilidad y sostenibilidad
- 5 Operadores, servicios y tiempos estimados
- 6 Integración con otras infraestructuras
- 7 Urbanismo, economía y ciudad vivida
- 8 Preguntas rápidas (FAQ)
- 9 Perspectivas futuras
- 10 Galería de fotos
Objetivos del proyecto
El objetivo central es claro: que los trenes de alta velocidad (Renfe, Iryo, Ouigo y futuros operadores) lleguen a T4 sin mezclarse con Cercanías. Eso reduce cuellos de botella, mejora tiempos y hace más fiable la operación. Para el viajero significa bajar del AVE y estar ya “dentro” del aeropuerto, con conexión inmediata a vuelos, Metro (L8 y L11), autobuses y taxis. De hecho, se construirá junto a la nueva estación de metro de la L11, mejorando el intercambio entre medios de transporte:

Cronograma y fases (actualizado a 2025)
- Fase 1 – Acceso AV a T4: obras de vía en ancho estándar (UIC) y adaptación del túnel norte del aeropuerto para triple hilo, con el objetivo de habilitar la llegada de trenes de alta velocidad al entorno de T4. El escenario de entrada en servicio comercial apunta a 2026, tras pruebas y autorización de seguridad.
- Fase 2 – Estación AV propia en Barajas: nuevo túnel exclusivo para alta velocidad y estación dedicada en el ámbito aeroportuario, separada de la actual estación de Cercanías. Esta fase es la que consolida Barajas como nodo AV a largo plazo.
- Nodo intermedio – Las Tablas AV: previsto un salto de carnero/nodo con estación de alta velocidad en Las Tablas, que mejora capacidad y encaja con los desarrollos del norte y Madrid Nuevo Norte.
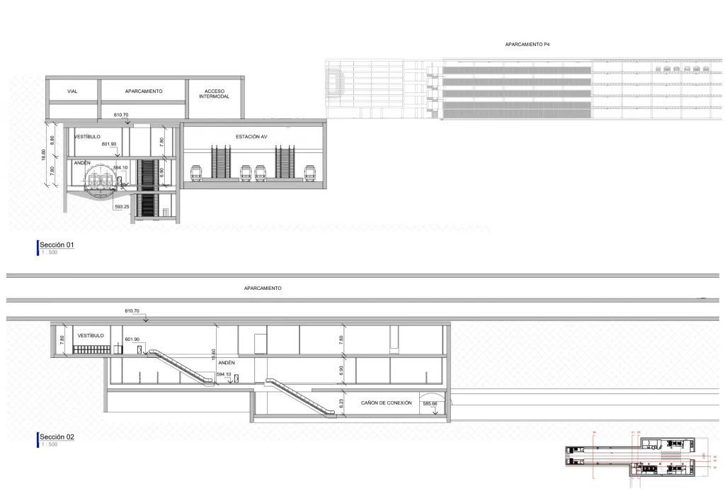
Detalles de la infraestructura
Trazado y capacidad
n el acceso ferroviario a Barajas se ha optado por una solución escalonada que exprime la capacidad desde el primer metro. El trazado parte de Chamartín y, en su tramo inicial, funciona con vía única en ancho UIC para sortear el cuello de botella más cercano a la estación. A partir del entorno del paso bajo la A-1 se desdobla a doble vía UIC hasta el aeropuerto, lo que permite estabilizar frecuencias y facilitar cruces sin penalizar tiempos. La clave para enganchar con el ámbito aeroportuario es el túnel norte, cuya adaptación a ancho mixto mediante tercer carril (triple hilo) está prácticamente rematada: con esa obra casi concluida, la transición hacia T4 ya es operativamente sólida mientras se ejecuta el futuro túnel exclusivo de alta velocidad. Todo ello se apoya en sistemas de señalización y protección de nivel AV, dimensionados para explotación mixta y escalable.

La estación de alta velocidad en Barajas (T4) nace separada de Cercanías. Así se evita cualquier interferencia operativa. Se diseñan flujos independientes para peatones, equipajes y accesos. Los andenes tendrán longitudes compatibles con trenes de gran formato. Entrarán y saldrán sin penalizar los tiempos de maniobra. La arquitectura prioriza la legibilidad del viajero. Habrá vestíbulos claros y lectura inmediata de puertas ferroviarias y aéreas. Los recorridos evitarán cruces con tráficos de Cercanías. Será una estación auténticamente aeroportuaria. Llegas en alta velocidad y entras en el ecosistema T4. Sin transbordos extra ni pasillos interminables que resten minutos.
Estación AV en Las Tablas
En Las Tablas, al norte de Chamartín, habrá una instalación técnica. No estará abierta a pasajeros. Actuará como pulmón operativo de la red. Su objetivo es liberar Chamartín de trenes parados. Así se facilita más circulación pasante. Habrá dos playas de vías en ancho internacional. El Sector A tendrá 10 vías y el Sector B, 7. Todas medirán 405 metros de longitud útil. Cada haz contará con andenes técnicos para personal de conducción. El primer haz tendrá tomas de energía, agua y vaciado de WC. Servirá para pequeñas labores de apoyo y mantenimiento. Se construirá un edificio técnico para Adif y operadoras. Incluirá oficinas, almacenes y cuartos de instalaciones. Esa configuración mejora la coordinación diaria de flotas.

La ubicación no es casual: desde Las Tablas se engancha directamente a la LAV Madrid–Valladolid, de modo que las composiciones pueden entrar y salir con rapidez hacia Chamartín sin bloquear andenes de alta demanda. El proyecto incluye demoliciones previas de edificaciones, desvío de servicios afectados (telefonía y fibra), reposición de drenajes ferroviarios —dos colectores de la LAV— y la modificación del muro de pilotes para generar el acceso. En vía, se mezclan soluciones en placa (Sector A) y balasto (Sector B), todo ello con electrificación completa. Para mover equipos y personas dentro del recinto se prevén dos pasos a nivel de tres metros de ancho, un paso inferior en el Sector A y un vial perimetral que resuelve cargas, descargas y aparcamiento del personal.
Impacto en la movilidad y sostenibilidad
Llevar el AV al aeropuerto reduce desplazamientos por carretera (menos taxis y VTC para conexiones Atocha/Chamartín ↔ Barajas), recorta emisiones y mejora el tiempo puerta-a-puerta en corredores como Valladolid-Madrid-Barajas, Zaragoza, Valencia, Alicante, Sevilla o Málaga.
Para Madrid, es una palanca de competitividad: más turismo de congresos, más viajes de negocio eficientes y, de rebote, mejores conexiones para quien vive y trabaja aquí (sí, también para quien está comparando dónde alquilar piso en Madrid con buena accesibilidad al aeropuerto).
Operadores, servicios y tiempos estimados
- Operadores previstos: Renfe, Iryo, Ouigo (y cualquier nuevo entrante).
- Servicios objetivo: mallas con paradas directas Chamartín ↔ T4, y extensiones desde/ hacia corredores troncales (Norte, Este y Sur).
- Tiempos indicativos (orden de magnitud): Chamartín–T4 ~10–12 min; desde Valladolid, Zaragoza o Valencia la mejora será “al final de viaje” (suprimes la conexión por carretera o el transbordo largo).
- Frecuencias: crecerán por fases; el diseño de doble vía en el tramo final y la estación exclusiva permiten escalar.
Integración con otras infraestructuras
- Chamartín Clara Campoamor: el gran corazón ferroviario de Madrid, en plena transformación, es el origen de la conexión y el sitio donde se cuadran las mallas de toda España.
- Metro L8, L11 y Cercanías C-1: seguirán siendo claves para el personal del aeropuerto y usuarios locales; la nueva estación AV no sustituye, complementa.
- Madrid Nuevo Norte y el norte metropolitano: con Las Tablas AV se teje una red que acerca el tren rápido a los barrios donde se vive y se trabaja, reduciendo dependencia del coche.

Urbanismo, economía y ciudad vivida
Una estación AV en un aeropuerto no es un lujo, es logística pura. La ecuación es sencilla:
- Más accesibilidad internacional, más inversión y empleo.
- Mejores conexiones diarias para talento y empresas.
- Efecto derrame en hoteles, ferias, congresos y vivienda de alquiler en corredores bien servidos por AV y Metro.
- Barajas se consolida como hub intermodal y Madrid se vende mejor al mundo porque “llegar” se hace más fácil y predecible.
Preguntas rápidas (FAQ)
- ¿Cuándo podré coger un AVE directo a T4?
El hito de puesta en servicio comercial se sitúa en 2026 para la primera fase (acceso y operación), con la estación AV propia avanzando a continuación. - ¿La estación AV sustituye la de Cercanías T4?
No. Cercanías C-1 sigue operando. La novedad es separar el AV en su propia estación/túnel para ganar capacidad y fiabilidad. - ¿Esto encarece los billetes?
La apertura a varios operadores y la mayor capacidad tienden a contener precios (y a mejorar la oferta).
Perspectivas futuras
Cuando la estación AV en Barajas esté madura, Madrid gana un “aeropuerto-estación” comparable a París CDG o Frankfurt: conexiones nacionales de alta velocidad sin transbordos, con tiempos puerta-a-puerta más cortos y menos incertidumbre. Eso atrae rutas, eventos globales y talento que valora poder saltar de tren a avión en el mismo nodo.
Galería de fotos
Descubre las imágenes del proyecto y visualiza cómo será la nueva estación de alta velocidad en Barajas.
